Description
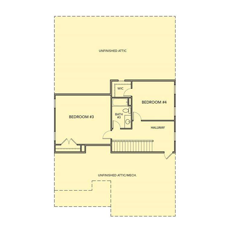
The Cedar AA- Welcome to this stunning new construction home offering modern design and exceptional functionality in a small quiet neighborhood. This beautifully crafted 4-bedroom, 3-bathroom residence features a highly desirable primary suite on the main level, providing comfort and convenience. The open-concept floorplan creates a seamless flow between the living spaces, perfect for both everyday living and entertaining. The chef's kitchen is the heart of the home, complete with a large island, stylish finishes, and ample space for gathering. A formal dining room adds an elegant touch, ideal for hosting holidays and special occasions. Upstairs, additional bedrooms offer flexibility for family, guests, or a home office setup. Enjoy outdoor living with both a welcoming covered front porch and a covered back patio--perfect for relaxing mornings or evening gatherings. With its clean, modern design and thoughtfully designed layout, this home blends style and comfort effortlessly. Don't miss the opportunity to own this beautiful new construction home in a peaceful neighborhood setting! "Pick Your Perk" builder incentives for the month of March! Up to $15000 design credits for pre-sale homes, interest rate buydowns, and buyer paid closing costs are available. Pick which option works for you!
-
4BEDS
-
0.17ACRES
-
3BATHS
-
01/2 BATHS
-
2,351SQFT
-
$183$/SQFT
School Information
Description
The Cedar AA- Welcome to this stunning new construction home offering modern design and exceptional functionality in a small quiet neighborhood. This beautifully crafted 4-bedroom, 3-bathroom residence features a highly desirable primary suite on the main level, providing comfort and convenience. The open-concept floorplan creates a seamless flow between the living spaces, perfect for both everyday living and entertaining. The chef's kitchen is the heart of the home, complete with a large island, stylish finishes, and ample space for gathering. A formal dining room adds an elegant touch, ideal for hosting holidays and special occasions. Upstairs, additional bedrooms offer flexibility for family, guests, or a home office setup. Enjoy outdoor living with both a welcoming covered front porch and a covered back patio--perfect for relaxing mornings or evening gatherings. With its clean, modern design and thoughtfully designed layout, this home blends style and comfort effortlessly. Don't miss the opportunity to own this beautiful new construction home in a peaceful neighborhood setting! "Pick Your Perk" builder incentives for the month of March! Up to $15000 design credits for pre-sale homes, interest rate buydowns, and buyer paid closing costs are available. Pick which option works for you!
Listings identified with the FMLS IDX logo come from FMLS, are held by brokerage firms other than the owner of this website and the listing brokerage is identified in any listing details. Information is deemed reliable but is not guaranteed.
If you believe any FMLS listing contains material that infringes your copyrighted work, please click here to review our DMCA policy and learn how to submit a takedown request.
© 2026 First Multiple Listing Service, Inc. Data last updated 2026-03-09T00:03:19.643. For issues regarding this website, please contact BoomTown.
