Description
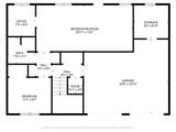
Welcome to this spacious 4 bedroom, 3 bath split foyer home located in the heart of Southwest Atlanta. Main Level Features: Open and airy vaulted living room with fireplace, Separate dining room and eat-in kitchen - perfect for gatherings, 3 bedrooms and 2 full baths, including a spacious owner's suite with tray ceiling, walk-in closet, and private bath featuring a double vanity, separate tub, and shower. Lower Level Features: New carpet throughout, include 1 additional bedroom and full bath - ideal for guests, in-laws, or home office, 2-car garage with ample storage. Outdoor Space: Fenced backyard for privacy and recreation
-
4BEDS
-
0.34ACRES
-
3BATHS
-
01/2 BATHS
-
2,194SQFT
-
$125$/SQFT
School Information
Description
Welcome to this spacious 4 bedroom, 3 bath split foyer home located in the heart of Southwest Atlanta. Main Level Features: Open and airy vaulted living room with fireplace, Separate dining room and eat-in kitchen - perfect for gatherings, 3 bedrooms and 2 full baths, including a spacious owner's suite with tray ceiling, walk-in closet, and private bath featuring a double vanity, separate tub, and shower. Lower Level Features: New carpet throughout, include 1 additional bedroom and full bath - ideal for guests, in-laws, or home office, 2-car garage with ample storage. Outdoor Space: Fenced backyard for privacy and recreation
Listings identified with the FMLS IDX logo come from FMLS, are held by brokerage firms other than the owner of this website and the listing brokerage is identified in any listing details. Information is deemed reliable but is not guaranteed.
If you believe any FMLS listing contains material that infringes your copyrighted work, please click here to review our DMCA policy and learn how to submit a takedown request.
© 2025 First Multiple Listing Service, Inc. Data last updated 2025-11-10T11:04:08.677. For issues regarding this website, please contact BoomTown.
