Description
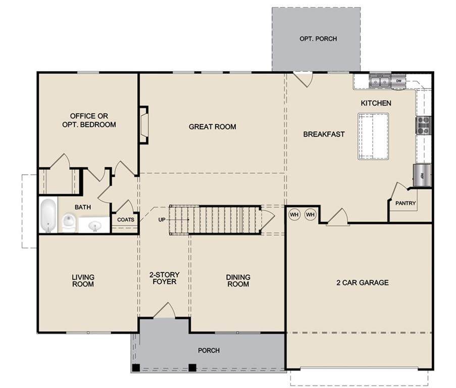
The Kinkaide Plan Lot 5: 5BR/4BA This new construction home is part of Mountain Valley’s final opportunity—Phase 3. It’s a quiet pocket of 16 homesites on large lots with its own private entrance. Located in the new Town of Mulberry and zoned for the Mill Creek High School District, the home offers over 3,400 square feet of thoughtfully designed living space on a spacious 0.41-acre homesite. Inside, the main level impresses with a two-story Foyer, a formal Dining Room, and a Study/Flex Space ideal for a Home Office or Sitting Room. An oversized Bedroom on the main includes direct Bath access and a large walk-in closet offering the perfect setup for guests or extended family. The Great Room centers around a fireplace and opens to a gourmet Kitchen appointed with stainless steel appliances including a wall oven with convection microwave, vent hood, cooktop, dishwasher, and disposal. Modern finishes include 42” white cabinets, quartz counters, tile backsplash, an oversized island with abundant seating, and a walk-in Pantry. Durable LVP flooring elevates the main living areas throughout. Upstairs offers three secondary Bedrooms with direct Bath access, a spacious Media Room, and a private oversized Owner’s Retreat. The Owner’s Bath features a soaking tub and a frameless tiled shower with bench. A double sink vanity with quartz counters, linen storage, a separate water closet, and a generous walk-in closet complete the suite. This location stands out with Little Mulberry Park less than a mile away, offering miles of trails and outdoor recreation close to home. Enjoy the convenience of I-85 access, Hamilton Mill shopping and dining, and the nearby Mall of Georgia corridor. This home will be complete May 2026. Schedule a showing today!
-
5BEDS
-
0.41ACRES
-
4BATHS
-
01/2 BATHS
-
3,470SQFT
-
$201$/SQFT
School Information
Description
The Kinkaide Plan Lot 5: 5BR/4BA This new construction home is part of Mountain Valley’s final opportunity—Phase 3. It’s a quiet pocket of 16 homesites on large lots with its own private entrance. Located in the new Town of Mulberry and zoned for the Mill Creek High School District, the home offers over 3,400 square feet of thoughtfully designed living space on a spacious 0.41-acre homesite. Inside, the main level impresses with a two-story Foyer, a formal Dining Room, and a Study/Flex Space ideal for a Home Office or Sitting Room. An oversized Bedroom on the main includes direct Bath access and a large walk-in closet offering the perfect setup for guests or extended family. The Great Room centers around a fireplace and opens to a gourmet Kitchen appointed with stainless steel appliances including a wall oven with convection microwave, vent hood, cooktop, dishwasher, and disposal. Modern finishes include 42” white cabinets, quartz counters, tile backsplash, an oversized island with abundant seating, and a walk-in Pantry. Durable LVP flooring elevates the main living areas throughout. Upstairs offers three secondary Bedrooms with direct Bath access, a spacious Media Room, and a private oversized Owner’s Retreat. The Owner’s Bath features a soaking tub and a frameless tiled shower with bench. A double sink vanity with quartz counters, linen storage, a separate water closet, and a generous walk-in closet complete the suite. This location stands out with Little Mulberry Park less than a mile away, offering miles of trails and outdoor recreation close to home. Enjoy the convenience of I-85 access, Hamilton Mill shopping and dining, and the nearby Mall of Georgia corridor. This home will be complete May 2026. Schedule a showing today!
Listings identified with the FMLS IDX logo come from FMLS, are held by brokerage firms other than the owner of this website and the listing brokerage is identified in any listing details. Information is deemed reliable but is not guaranteed.
If you believe any FMLS listing contains material that infringes your copyrighted work, please click here to review our DMCA policy and learn how to submit a takedown request.
© 2026 First Multiple Listing Service, Inc. Data last updated 2026-03-16T19:04:05.08. For issues regarding this website, please contact BoomTown.
