Description
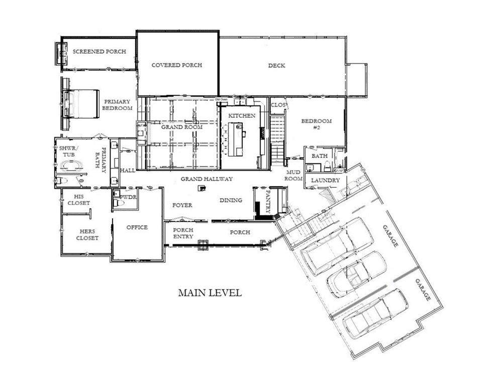
Samples Residential presents a wonderful opportunity to build a true custom home located on a 2.59 acre estate lot. This custom home can be built to your specifications, features & selections. Main level features an open floor plan, primary suite features spa like amenities with oversized closet, secondary suite, dining room, sitting room or home office, large kitchen features an oversized island and open flow to the spacious grand room with fireplace, mud room, laundry, deck, screened back porch, covered front & back porch for outdoor entertainment, 3 car garage. Terrace level features entertainment & living space with bar and fireplace, bedroom suite #3 with bath (optional office or flex room space), bedroom suite #4 with bath (optional office or flex room space), expansive patio space for outdoor entertainment. Upper-level features unfinished space for future expansion and or additional storage. Plan & images shown are only a representation of the home that can be built. You can also bring your own Plan or Samples Residential can design your custom plan to be built to your specifications, features & selections. Call today for more information
-
4BEDS
-
2.59ACRES
-
4BATHS
-
11/2 BATHS
-
7,091SQFT
-
$190$/SQFT
School Information
Description
Samples Residential presents a wonderful opportunity to build a true custom home located on a 2.59 acre estate lot. This custom home can be built to your specifications, features & selections. Main level features an open floor plan, primary suite features spa like amenities with oversized closet, secondary suite, dining room, sitting room or home office, large kitchen features an oversized island and open flow to the spacious grand room with fireplace, mud room, laundry, deck, screened back porch, covered front & back porch for outdoor entertainment, 3 car garage. Terrace level features entertainment & living space with bar and fireplace, bedroom suite #3 with bath (optional office or flex room space), bedroom suite #4 with bath (optional office or flex room space), expansive patio space for outdoor entertainment. Upper-level features unfinished space for future expansion and or additional storage. Plan & images shown are only a representation of the home that can be built. You can also bring your own Plan or Samples Residential can design your custom plan to be built to your specifications, features & selections. Call today for more information
Listings identified with the FMLS IDX logo come from FMLS, are held by brokerage firms other than the owner of this website and the listing brokerage is identified in any listing details. Information is deemed reliable but is not guaranteed.
If you believe any FMLS listing contains material that infringes your copyrighted work, please click here to review our DMCA policy and learn how to submit a takedown request.
© 2025 First Multiple Listing Service, Inc. Data last updated 2025-11-07T13:04:52.61. For issues regarding this website, please contact BoomTown.
